土地活用のリンケージTOP > 取扱物件 > 貸店舗・貸事務所 > 物件番号:o-0591
物件番号:o-0591
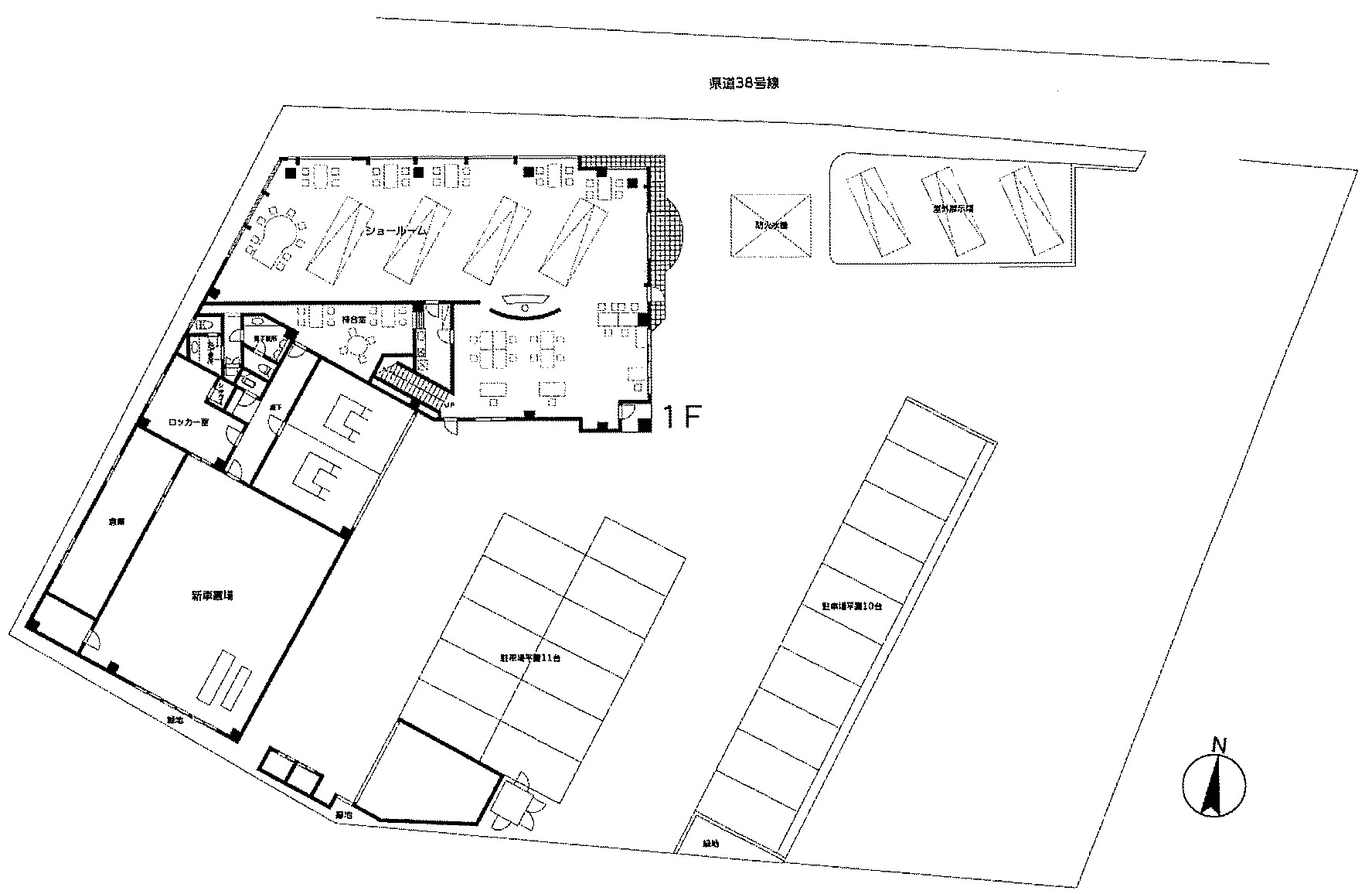
・県道38号線沿い
・国道17号線至近
賃料(税込):1,650,000円 (坪単価:8,199円)
| 種別 | 貸店舗・営業所 |
| 所在地 | 埼玉県鴻巣市天神3-1-12 |
| 最寄駅 | JR湘南新宿ライン・高崎線「鴻巣」駅 |
| バス停 | 3分 停歩11分 |
| 建物構造・規模 | 鉄骨造亜鉛メッキ銅板葺2階建 |
| 所在階 | 1階・2階 |
| 建物面積/専有面積 | 1階:557.47平米 2階:107.77平米 合計:665.24平米 |
| 建築年(月) | 1996年3月 |
| 賃料(税込) | 1,650,000円 (坪単価:8,199円) |
| 敷金・保証金 | 敷金:6ヶ月分 |
| 礼金・償却 | 礼金:1ヶ月分 |
| 更新料等 | 新賃料の1ヶ月 |
| 契約期間 | 3年間(更新可) |
| 使用可能時期 | 2026年4月以降 |
| 用途地域 | 第一種住居地域 |
| 接道 | 北側:県道38号線 |
| 駐車場 | 有 |
| 現況 | 使用中 |
| 引渡し | 2026年4月以降 |
| 取引形態 | 専任媒介 |
| 備考 | 土地面積:2,555.81平米 |



